Espace propriétaire
fr

Votre recherche

Semécourt (57210)

504 m²

À LOUER – LOCAL D’ACTIVITÉS / CELLULE COMMERCIALE NEUVE DE 504 M² – SEMÉCOURT (57280)

5 000 € / mois HT - HC*
Ref : 6130
Découvrir le bien

À LOUER – LOCAL D’ACTIVITÉS / CELLULE COMMERCIALE NEUVE DE 504 M² – SEMÉCOURT (57280)
En cours de construction – Excellente visibilité – Accès immédiat A4 / A31 – Zone dynamique

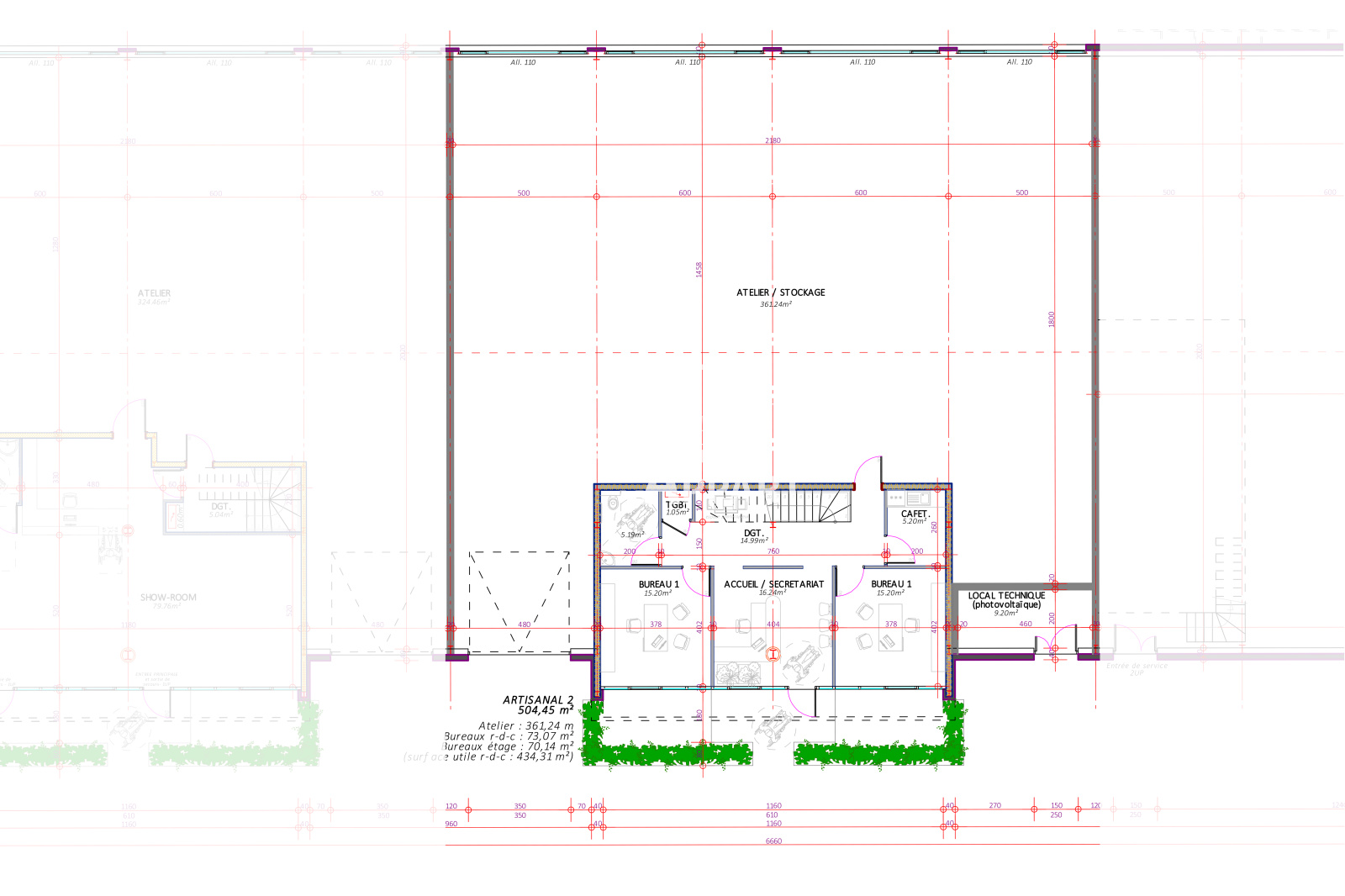
Julien RICCIARDIELLO vous propose cette cellule située au sein du Val Euromoselle Sud, secteur recherché au nord de Metz, ce local de 504 m² actuellement en cours de construction sera livré brut de béton, offrant une grande souplesse d’aménagement pour une activité artisanale, industrielle ou commerciale.

Caractéristiques techniques :

  • Surface totale : 504 m²

  • Local livré brut de béton, gaines de fluides en attente

  • Bâtiment isolé, dalle béton

  • Porte sectionnelle adaptée au passage poids lourds

  • Hauteur libre optimisée pour le stockage ou l’installation d’équipements

Aménagements possibles :

  • Création de bureaux possible en rez-de-chaussée et/ou mezzanine, selon cahier des charges

  • Adapté à différents usages : entrepôt, atelier, showroom, espace de vente

Accès et stationnement :

  • Site clos et sécurisé

  • 30 places de stationnement, dont 6 PMR

Localisation stratégique :

  • À 2 minutes des autoroutes A4 et A31

  • Zone d’activités dynamique, reconnue pour son attractivité auprès des entreprises

  • À proximité immédiate de la zone commerciale Auchan Semécourt (services, restauration, hôtellerie, enseignes professionnelles)

Disponibilité : prévisionnelle à la livraison – nous consulter

Activités possibles :
Local adapté à une activité artisanale, industrielle ou commerciale nécessitant de la visibilité, de l’accessibilité et du stationnement.

Dossier technique, plans et cahier des charges disponibles sur demande.
Informations sur les risques auxquels ce bien est exposé disponibles sur www.georisques.gouv.fr

 

TRAD_ZEPHYR_Caracteristique TRAD_ZEPHYR_Valeurs
Type de transac Local commercial
Code postal 57210
Superficie (m²) 504
TRAD_ZEPHYR_Caracteristique TRAD_ZEPHYR_Valeurs
Mode de chauffage Solaire
Type de chauffage Air pulsé
Format de chauffage Individuel
Année de construction 2026
TRAD_ZEPHYR_Caracteristique TRAD_ZEPHYR_Valeurs
Copropriété NON
TRAD_ZEPHYR_Caracteristique TRAD_ZEPHYR_Valeurs
Loyer HT 5 000 € / mois
Honoraires HT charge locataire 9 000 €
Dont état des lieux 1 512 €
Dépot de garantie 15 000 €
Bail COMMERCIAL
DPE GES
  • Commerces et santé
  • Loisirs
  • Ecoles
  • Transports
  • Pratique
Contacter pour ce bien
L'agence
Téléphone 03 82 22 22 22
Adresse
75 rue de Franchepré 54240 Joeuf

* Champ obligatoire

Les informations recueillies sur ce formulaire sont enregistrées dans un fichier informatisé par La Boite Immo agissant comme Sous-traitant du traitement pour la gestion de la clientèle/prospects de l'Agence / du Réseau qui reste Responsable du Traitement de vos Données personnelles. La base légale du traitement repose sur l'intérêt légitime de l'Agence / du Réseau. Elles sont conservées jusqu'à demande de suppression et sont destinées à l'Agence / au Réseau. Conformément à la loi « informatique et libertés », vous disposez des droits d’accès, de rectification, d’effacement, d’opposition, de limitation et de portabilité de vos données. Vous pouvez retirer votre consentement à tout moment en contactant directement l’Agence / Le Réseau. Consultez le site https://cnil.fr/fr pour plus d’informations sur vos droits. Si vous estimez, après avoir contacté l'Agence / le Réseau, que vos droits « Informatique et Libertés » ne sont pas respectés, vous pouvez adresser une réclamation à la CNIL. Nous vous informons de l’existence de la liste d'opposition au démarchage téléphonique « Bloctel », sur laquelle vous pouvez vous inscrire ici : https://www.bloctel.gouv.fr Dans le cadre de la protection des Données personnelles, nous vous invitons à ne pas inscrire de Données sensibles dans le champ de saisie libre.
Ce site est protégé par reCAPTCHA, les Politiques de Confidentialité et les Conditions d'Utilisation de Google s'appliquent.

Découvrir nos outils